上海应用技术学院DC-1227学生宿舍家具采购信息
根据《中华人民共和国政府采购法》和《上海市政府采购管理办法》,上海应用技术学院资产处对徐汇校区48号楼学生宿舍家具进行公开询价,凡对本信息有意向的供应商,可按照以下要求对下列设备进行报价。
一、设备内容:
内容详见附表。
二、供货方式、地点:
卖方根据买方提供使用部门的名称、地址以及设备的要求、数量等,按时送货上门,并根据使用部门的要求安装到位。送货、安装工程等费用应包含在单价中。
上述货物需求时间为合同签订后一个月内,送货地址为:徐汇校区
四、付款方式:
合同签订后预付30%,在货物验收合格后一月内支付余款,同时交纳合同价款的5%为质保金。质保金期为1年,期满后,无明显质量问题,质保金无息归还。
五、质量保证:
卖方根据合同提供的货物应是全新的未使用过的,应附有详细配置清单,技术规格应明细,符合国家标准,实行五年免费保修并负责终身维修。保修期内卖方应免费维修,保修期外的维修收费按相关规定办理。
六、设备报价:
1、报价文件一正四付,人民币报价,报价单请加盖红章。
2、报价单位应根据上述“设备名称"的规定进行报价,其报价在采购过程中是不可以改变
3、报价单位必须是中国境内注册的独立法人,注册资本不低于人民币50万元,在报价的同时请附上营业执照(年检须合格)、税务登记证和相关资质能力证明文件、单位法人授权委托书、投标代表身份证等证明文件的复印件并加盖公章;
4、报价单位应具有相应高校类似规模或以上的销售业绩,服务信誉良好,在上海地区具备常驻售后服务机构,并能提供证明以上业绩的相关材料;
5、投标供应商应取得相应质量管理体系及环境管理体系认证;
6、 投标供应商投标产品具备相关管理部门的家具及主要用材材质的检验检测报告,质检部门出具的成品环保合格证;
7、投标文件中应明确针对该项目的质量保证措施和售后服务具体承诺。
七、报价评审:
我校对收到合格的报价文件组织评审(以综合评审的方式),根据评审结果,将把合同授予性价比最佳的并具有较好履约能力的报价单位.我校在网上公布。
八、截止时间:
以上报价文件请在 2012年7月4日( 星期三)14:00(北京时间)之前,密封(封面必须写上DC-1227号、孟老师、何老师收)送达(或快递)到下列地址,逾期不予接收。
建议使用顺丰快递。
联系地址:上海奉贤海泉路100号上海应用技术学院行政楼112室
联系人、联系电话:孟老师、何老师:021-60873572
传真电话: 021-60873572
邮政编号: 201418
上海应用技术学院
资产处 2012.06.11
附件:学生宿舍家具具体要求
名称
| 规格
| 图示
| 数量
| 要求
|
写字台
| 700*600*1660
| 
| 324
| 桌子(每个独立):台面采用25mm黄木纹防火板,背板及抽屉底板采用双贴面三聚氰胺三夹板,抽屉加插片锁,导轨采用2节固定式滑杆,五金配件采用海蒂诗。
|
六人衣橱
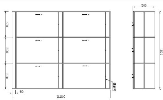
| 1800*500*2200
| 
| 54
| 木制衣柜:1800*500*2200(分上下两层,共6个,每个单门,采用插片锁):采用18mm厚黄色木纹三聚氰胺刨花板,1.5mm封边封条;衣柜上方置一挂衣不锈钢横杆,要求固定牢固,五金配件采用海蒂诗,可承载重物。
|
脸盆架
| 外尺寸450*450*7层
| 
| 55
| 木制,三脚
|